info@awm-agent.com
  info@awm-agent.com

Neubau Villas mit 4 Schlafzimmern und 3 Badezimmern in Los Montesinos| Ref: MA-2323B

Kaufpreis 549.900 €
Schlafzimmer 4
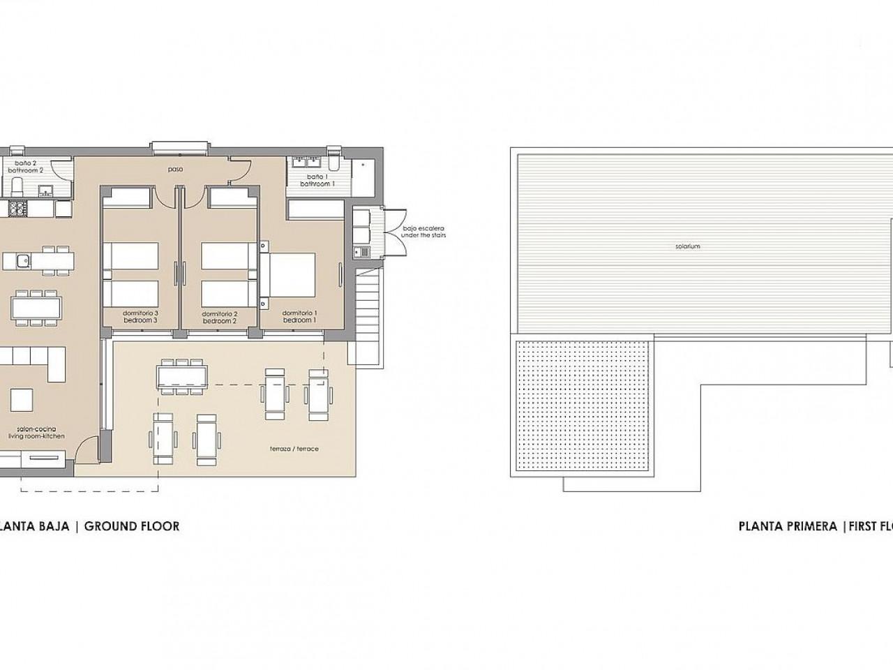
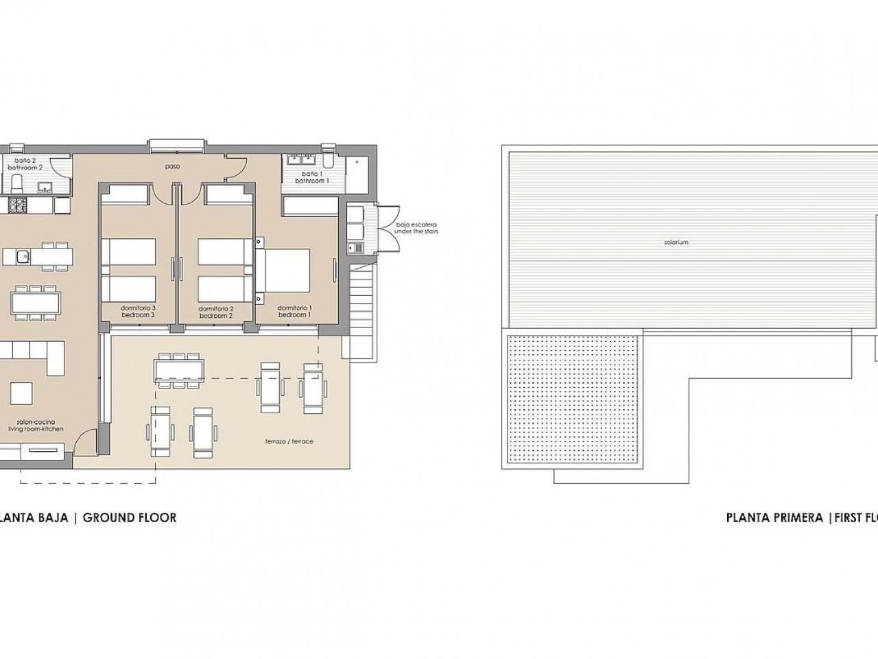
Wohnfläche ca. 176 m²

Ausstattung

Pool
Ja

Lage

Objektbeschreibung

Ausstattungsbeschreibung

New, Villa, Terrasse, Terrace (2), Elevator: No, Basement: No, Air conditioning: Yes, White goods: Yes, Garage, Porch: No, Private Pool, Close to Shops, Close to Golf, Energy Certificate Applied,

Objektdaten

Standort
Los montesinos
Wohnfläche
ca. 176 m²
Grundstücksfläche
ca. 307 m²
Anzahl Schlafzimmer
4
Anzahl Badezimmer
3
Kaufpreis
549.900 €
Verkäufer-/Vermieterprovision
0 % (inkl. MwSt.)
Käuferprovision
3.63 % (inkl. MwSt.)
Provisionshinweis
PROVISIONSHINWEIS
Interne Objekt-ID
3288
Externe Objekt-ID
MA-2323B
OpenImmo-ID
MA-2323B
Stand vom
11.02.2026