info@awm-agent.com
  info@awm-agent.com

NEU GEBAUTE DOPPELHAUSHÄLFTEN IN POLOP

Kaufpreis 663.115 €
Schlafzimmer 3
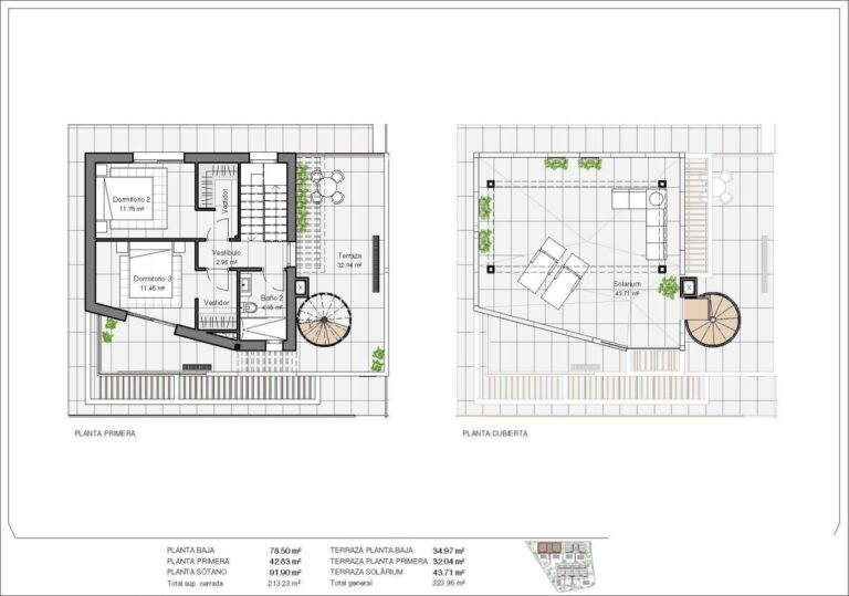
Wohnfläche ca. 213 m²

Ausstattung

Pool
Ja

Kurzbeschriebung

NEU GEBAUTE DOPPELHAUSHÄLFTEN IN POLOP

Neubau von modernen Reihenhäusern und Doppelhaushälften mit mehreren Terrassen und Solarium, komplett eingezäunt, mit Parkplatz für Fahrzeuge und privatem Swimmingpool in Polop.

Modernes Anwesen mit 3 geräumigen Schlafzimmern mit Einbauschränken (das Hauptschlafzimmer im Erdgeschoss, mit Bad und Ankleidezimmer en suite), 2 geräumigen Badezimmern, großem Wohn-Esszimmer mit offener Küche, geräumigen Terrassen, großem Halbkeller mit Fenstern.

Die Küche ist mit Unterschränken und Silestone-Arbeitsplatten ausgestattet, mit Cerankochfeld, Backofen, Dunstabzugshaube, Kühlschrank, Waschmaschine, Geschirrspüler und aerothermischer Heizung.

Erste Qualitäten: Innenschreinerarbeiten in Holz und weiß lackierten Laminaten, Außenschreinerarbeiten in anthrazitgrauem PVC mit Doppelverglasung und Wärmebrückenunterbrechung und automatischen Jalousien mit Aluminiumlamellen, rutschfeste Keramikböden erster Qualität, glatte Wände, Sicherheitstür mit 5 Ankerpunkten, große Einbauschränke.

Die Stadt Polop bietet eine Vielzahl von Möglichkeiten für Liebhaber der Natur und der unvergleichlichen Ruhe.

Die Gemeinde genießt ein mediterranes Klima mit kühleren Temperaturen und sauberer Luft und liegt weniger als 10 Kilometer von Benidorm, Altea und deren Stränden entfernt.

Sie erstreckt sich von den Flüssen Guadalest und Algar bis zur Stadt Villajoyosa, einschließlich der Strände von Albir und Benidorm; im Landesinneren grenzt sie an Callosa und Guadalest.

Lage

Objektbeschreibung

NEU GEBAUTE DOPPELHAUSHÄLFTEN IN POLOP

Neubau von modernen Reihenhäusern und Doppelhaushälften mit mehreren Terrassen und Solarium, komplett eingezäunt, mit Parkplatz für Fahrzeuge und privatem Swimmingpool in Polop.

Modernes Anwesen mit 3 geräumigen Schlafzimmern mit Einbauschränken (das Hauptschlafzimmer im Erdgeschoss, mit Bad und Ankleidezimmer en suite), 2 geräumigen Badezimmern, großem Wohn-Esszimmer mit offener Küche, geräumigen Terrassen, großem Halbkeller mit Fenstern.

Die Küche ist mit Unterschränken und Silestone-Arbeitsplatten ausgestattet, mit Cerankochfeld, Backofen, Dunstabzugshaube, Kühlschrank, Waschmaschine, Geschirrspüler und aerothermischer Heizung.

Erste Qualitäten: Innenschreinerarbeiten in Holz und weiß lackierten Laminaten, Außenschreinerarbeiten in anthrazitgrauem PVC mit Doppelverglasung und Wärmebrückenunterbrechung und automatischen Jalousien mit Aluminiumlamellen, rutschfeste Keramikböden erster Qualität, glatte Wände, Sicherheitstür mit 5 Ankerpunkten, große Einbauschränke.

Die Stadt Polop bietet eine Vielzahl von Möglichkeiten für Liebhaber der Natur und der unvergleichlichen Ruhe.

Die Gemeinde genießt ein mediterranes Klima mit kühleren Temperaturen und sauberer Luft und liegt weniger als 10 Kilometer von Benidorm, Altea und deren Stränden entfernt.

Sie erstreckt sich von den Flüssen Guadalest und Algar bis zur Stadt Villajoyosa, einschließlich der Strände von Albir und Benidorm; im Landesinneren grenzt sie an Callosa und Guadalest.

Ausstattungsbeschreibung

Entfernung zum Strand: 10000m, Garten, Solarium, Terrasse,

Objektdaten

Standort
03520 Polop
Wohnfläche
ca. 213 m²
Grundstücksfläche
ca. 330 m²
Anzahl Schlafzimmer
3
Anzahl Badezimmer
2
Kaufpreis
663.115 €
Verkäufer-/Vermieterprovision
0 % (inkl. MwSt.)
Käuferprovision
3.63 % (inkl. MwSt.)
Provisionshinweis
PROVISIONSHINWEIS
Interne Objekt-ID
660
Externe Objekt-ID
MM-MN218POL20
OpenImmo-ID
MM-MN218POL20
Stand vom
18.11.2024

Energieausweis

EnergieeffizienzklasseB

Energieeffizienzklasse

A+
A
B
C
D
E
F
G
H