info@awm-agent.com
  info@awm-agent.com

Moderne Neubauvilla in Meeresnähe in Javea

Kaufpreis 1.450.000 €
Schlafzimmer 3
Wohnfläche ca. 210 m²

Ausstattung

Pool
Ja

Kurzbeschriebung

Moderne Neubauvilla in Meeresnähe in Javea

Lage

Objektbeschreibung

Moderne Neubauvilla in Meeresnähe in Javea

Exklusives mediterranes Wohnen in Javea
Entdecken Sie diese atemberaubende, moderne Villa in einer der begehrtesten und ruhigsten Gegenden von Javea, nur 800 Meter vom Meer entfernt. Eingebettet zwischen Pinien und in der Nähe der berühmten Cala de la Barraca und Cala del Portixol bietet diese Residenz einen privilegierten Lebensstil inmitten der Natur und der Schönheit der Küste. Javea liegt an der Costa Blanca zwischen Alicante und Valencia und ist bekannt für sein kristallklares Wasser, seine charmante Altstadt und sein ganzjährig mildes Klima, was es zu einem der begehrtesten Reiseziele im Mittelmeerraum macht.

Elegantes Design und helle, offene Räume
Diese Villa wurde für Komfort und Stil entworfen und zeichnet sich durch eine moderne Architektur mit weichen Linien, großen Fenstern und einer fließenden Integration von Innen- und Außenbereich aus. Natürliches Licht durchflutet jeden Winkel und schafft eine warme und einladende Atmosphäre, die sowohl zum Wohnen als auch zur Unterhaltung ideal ist.

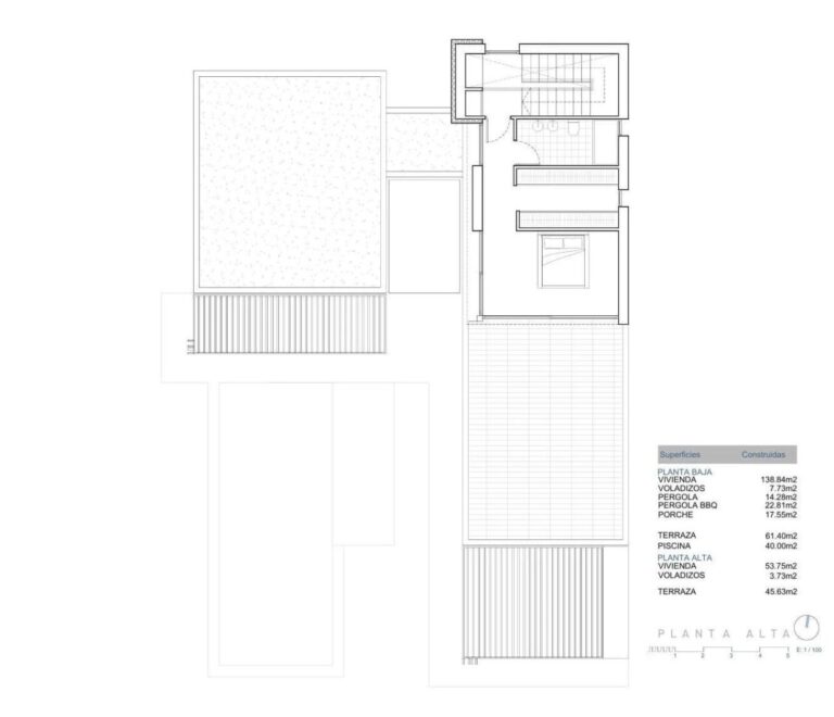
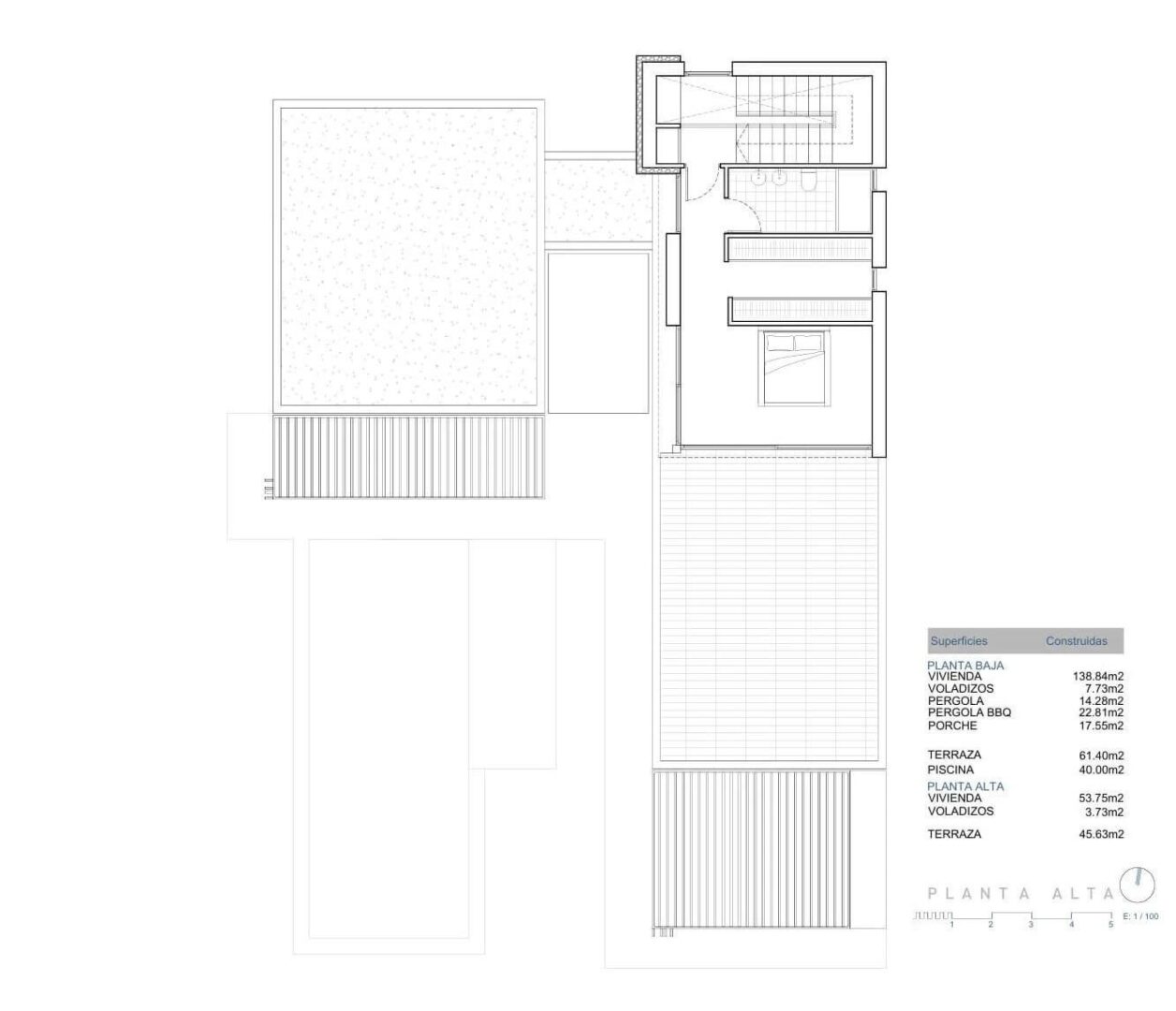
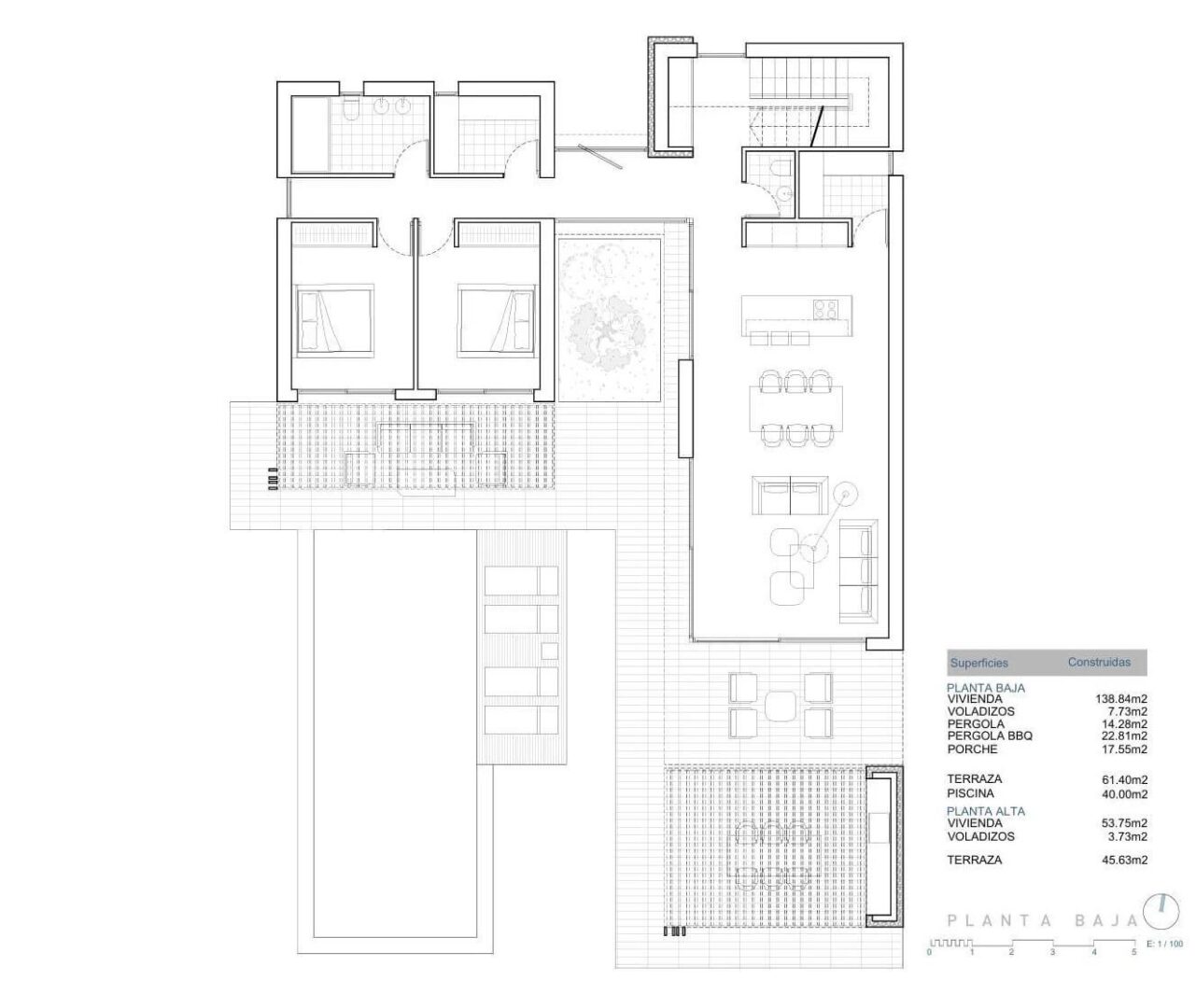
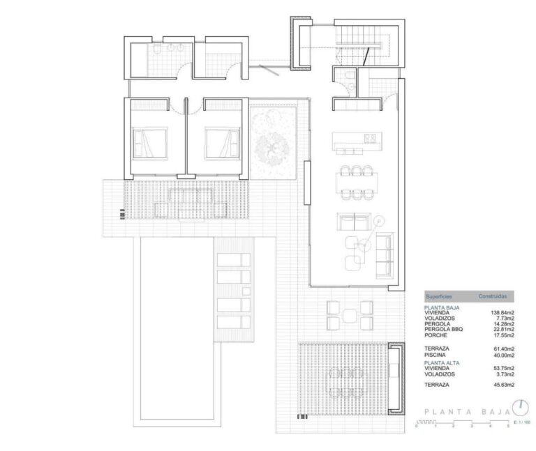
Die Villa erstreckt sich über zwei Etagen und umfasst
Offener Wohn- und Essbereich mit nahtlosem Zugang zu Terrassen und Pool
Voll ausgestattete offene Küche
3 Schlafzimmer und 2 Badezimmer sowie 1 Gästetoilette
Waschküche und Vorratsraum
Privater Garten, Terrassen und Poolbereich mit Sommerküche

Private Master-Suite und Outdoor-Lifestyle
Das Erdgeschoss umfasst zwei Schlafzimmer, ein Badezimmer und großzügige Gemeinschaftsbereiche. Im Obergeschoss bietet das Hauptschlafzimmer einen privaten Rückzugsort mit eigenem Bad, einem großzügigen begehbaren Kleiderschrank und einer 45 m² großen Terrasse, die sich perfekt eignet, um den Sonnenaufgang und die mediterrane Brise zu genießen. Der Außenbereich wurde zum Entspannen konzipiert und verfügt über einen privaten Pool, Sonnenterrassen und eine üppige Umgebung, die Ruhe und Privatsphäre garantieren.

Erstklassige Lage an der Costa Blanca Nord
Javea bietet einen außergewöhnlichen Lebensstil mit schönen Stränden, Wanderwegen, Yachthäfen, Golfplätzen und Gourmet-Restaurants. Die Stadt liegt 92 km von Alicante und 105 km von Valencia entfernt.

Wichtige Entfernungen
Strand und Cala del Portixol: 0,8 km
Hafen und Yachthafen von Javea: 8 km
Golfclub Javea: 10 km
Flughafen Alicante: 100 km
Flughafen Valencia: 125 km

Ihr mediterranes Zuhause wartet auf Sie
Ob Sie einen dauerhaften Wohnsitz, einen luxuriösen Urlaubsort oder eine erstklassige Investition suchen, diese Villa bietet Privatsphäre, Komfort und eine außergewöhnliche Lage an der Küste. Kontaktieren Sie uns noch heute für weitere Informationen oder um eine Besichtigung dieses exklusiven modernen Hauses in Javea zu vereinbaren.

Ausstattungsbeschreibung

Entfernung zum Strand: 800m, Garten, Solarium, Terrasse,

Objektdaten

Standort
03738 Jávea - xàbia
Wohnfläche
ca. 210 m²
Grundstück
ca. 1.000 m²
Anzahl der Schlafzimmer
3
Anzahl Badezimmer
2
Kaufpreis
1.450.000 €
Verkäufer-/Vermieterprovision
0 % (inkl. MwSt.)
Käuferprovision
3.63 % (inkl. MwSt.)
Provisionshinweis
PROVISIONSHINWEIS
Interne Objekt-ID
3804
Externe Objekt-ID
MM-N9327
OpenImmo-ID
MM-N9327
Stand vom
05.11.2025

Energieausweis

Energieeffizienz KlasseB

Energieeffizienzklasse

A+
A
B
C
D
E
F
G
H
Ihr Kontakt
Ihr Kontakt